案例展示

宋·空中艺术中心

项目名称:宋·空中艺术中心 项目类别:商业连锁 项目行业: 金融 项目面积:1000平以下

【项目名称】:宋·空中艺术中心

【项目地址】:中国-北京-朝阳

【建筑面积】:300

【设计单位】:北京华信恒创装饰工程有限公司

【施工单位】:北京华信恒创装饰工程有限公司

/设计说明/

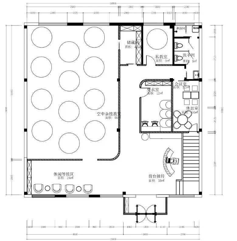
       该舞蹈教室位于北京市朝阳区百子湾,是一家充满氛围感的舞蹈艺术中心,该空间各个区域分布合理,设有前台接待,休闲等候,更衣室,空中杂技教室,私教室等,整个教室以简洁为主,暖白色的墙面搭配极简的法式线条,地面使用原木系地板,让空间更加温馨舒适,不论是学习还是参观,都得到很好的体验。

/平面方案/


图片


/效果展示/


您是否也有类似的设计需求?

贴心服务 高枕无忧